桌类家具标准尺寸
桌类家具标准尺寸
参考标准:GB/T 3326-2016
发布日期2016-12-13
实施日期2017-07-01
目前标准状态为现行
此标准规定了桌类家具的主要尺寸。标准适用于双柜桌﹑单柜桌﹑梳妆桌(梳妆台)、单层桌。
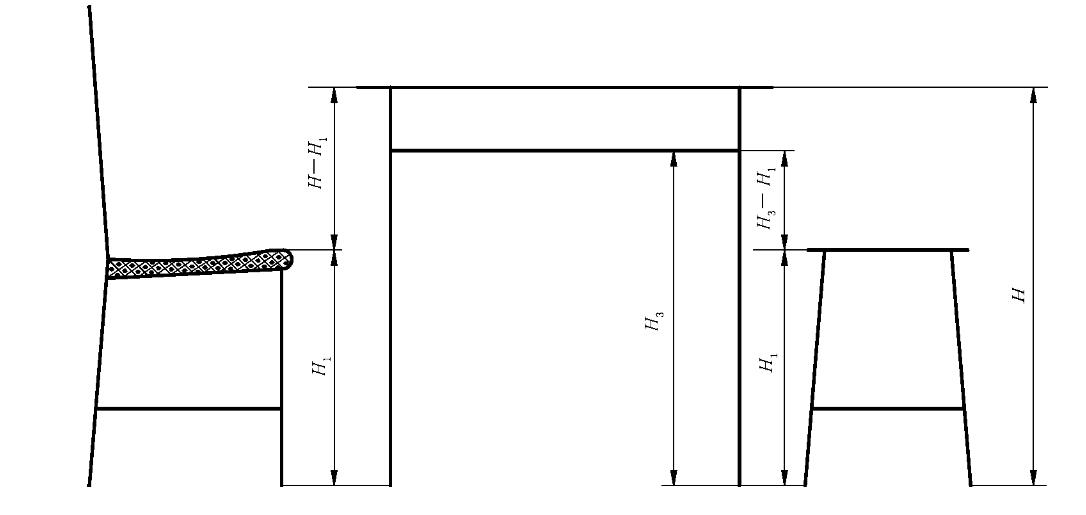
桌面高、座高、配合高差见图1、表2

图1桌高、座高、配合高差示意图

双柜桌
双柜桌尺寸见下图。双柜桌的两侧柜体可以是连体或组合式

双柜桌尺寸

单柜桌尺寸见下图。单柜桌的侧柜体可以是连体或组合式。

单柜桌尺寸

梳妆桌(梳妆台)尺寸见下图

梳妆桌(梳妆台)尺寸

长方桌尺寸见下图


方桌﹑圆桌尺寸见下图



代号说明见下图

[上一条]:永亨实业梦想孵化中心,第十一期培训顺利结业
[下一条]:医用柜、处理柜、治疗柜、药品柜-医院家具










